Łódź, Śródmieście, ok. Piotrkowskiej

Mieszkanie na wynajem

Opis nieruchomości

- OGÓLNIE: mieszkanie w komfortowym apartamentowcu z basenem, sauną i salą fitness do dyspozycji najemców, ścisłe centrum Łodzi, w bezpośrednim sąsiedztwie park, miejsce parkingowe w garażu wielopoziomowym pod budynkiem, całodobowa ochrona (recepcja), eleganckie wykończenia wind i klatek schodowych.


- WOLNE: od  ZARAZ
- CZYNSZ DLA WŁAŚCICIELA: 4000 zł
- POZOSTAŁE OPŁATY: czynsz do wspólnoty ok. 1200 zł, w tym min. zaliczka na ogrzewanie, ciepłą i zimną wodę (kalkulacja przy 1 osobie zamieszkującej), koszty zarządu (w tym ochrona i basen), garaż + prąd wg zużycia

- UWAGA: w czynszu najmu telewizja i szybki internet - łącze światłowodowe


- KAUCJA:
jednomiesięczny czynsz z opłatami, nie mniej niż 5000 zł,
- CZAS NAJMU: do uzgodnienia, preferowany najem długoterminowy nie mniej niż 12 miesięcy
 
- OPIS POMIESZCZEŃ (umeblowanie / wyposażenie):
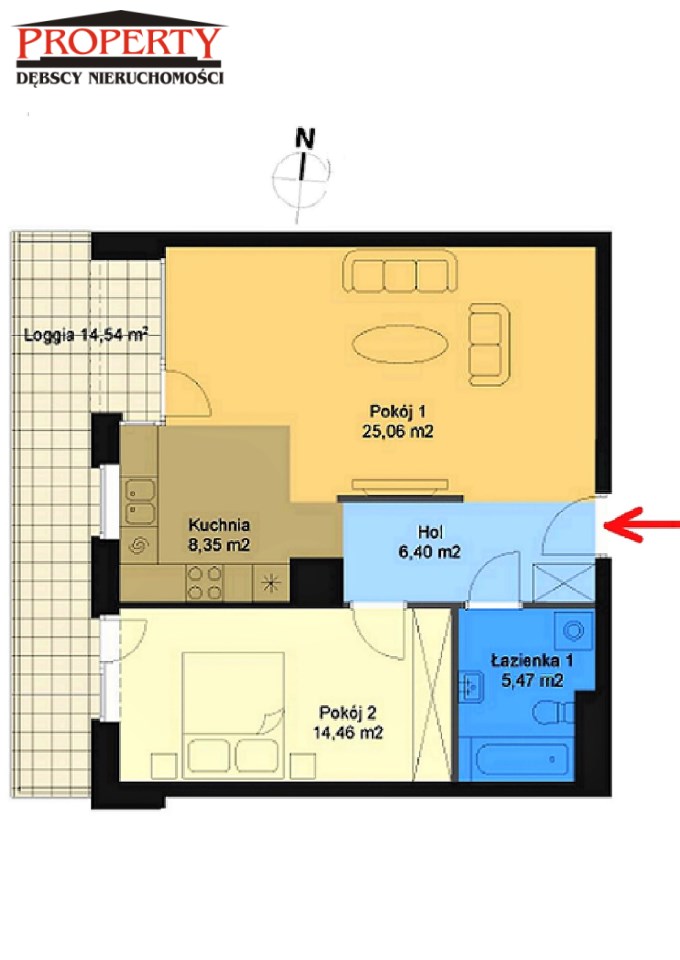
- PRZEDPOKÓJ: 6,40 m², wieszak na okrycia wierzchnie, szafka,
- SALON: 25,06 m², łącznie z aneksem i holem wejściowym ok. 39 m², salonu wyjście na loggię z widokiem na zieleń, duża kanapa narożna, rozkładana, stolik kawowy, szafka Rtv, telewizor 65", stół + 6 krzeseł,
- SYPIALNIA: ok. 14,46 m², łóżko podwójne, szafka nocna, wbudowana duża szafa na całej ścianie, fotel, lampa stojąca
- ANEKS KUCHENNY: 8,35 m², zestaw eleganckich szafek kuchennych, lodówka z zamrażarką w zabudowie,  zmywarka, płyta elektryczna, kompletne, nowe sprzęty kuchenne z IKEA, kuchnia widna - drzwi balkonowe z wyjściem na loggię,  
- ŁAZIENKA Z WC: 5,47m², kabina prysznicowa, umywalka z lustrem i szafką umywalkową, sedes, pralk0-suszarka.

- STANDARD WYKOŃCZEŃ: na podłogach wszędzie drewniana deska barlinecka, gres w łazience i w aneksie kuchennym, ściany gładzie gipsowe pomalowane na stonowane kolory,

- BUDYNEK: elegancki, 7-kondygnacyjny apartamentowiec z 2013r., nowoczesne, szybkobieżne windy, hall wejściowy z recepcją i nowoczesnym systemem monitoringu, wysoki standard wykończenia: elewacje zewnętrzne, stolarka i części wspólne wykonane ze szlachetnych materiałów np: kamienia naturalnego, drewna egzotycznego, stali nierdzewnej, parking wielopoziomowy na ponad 120 samochodów,
- ROZKŁAD: tak, mieszkanie w pełni rozkładowe,
- ŚRODKOWE: mieszkanie środkowe,  
- LOGGIA: 14,54 m², wyłożona terakotą, od strony zachodniej z widokiem na zieleń, zamontowane przesuwne żaluzje przeciwsłoneczne, zestaw mebli ogrodowych,
- OKNA - okna mahoniowe/ DRZWI: zewnętrzne antywłamaniowe Dierre, wewnętrzne drewniane,
- WYSTAWA OKIENNA: zachód,
- MEDIA / OPOMIAROWANIE: wszystkie media miejskie, także ogrzewanie i ciepła woda z sieci miejskiej, w budynku jest Toya i Netia, możliwa także telewizja satelitarna,  

- GARAŻ / PARKING: miejsce parkingowe w wielopoziomowym garażu wielostanowiskowym pod budynkiem, brama wjazdowa na pilota, MIEJSCE PARKINGOWE DODATKOWO PŁATNE - 300 zł/m-c
- PIWNICA / KOMÓRKA LOKATORSKA: brak.

- UWAGA!   Oferty prezentowane na naszych stronach nie stanowią oferty w rozumieniu Kodeksu Cywilnego, a są jedynie zaproszeniem do rokowań. Podane dane mają charakter wyłącznie informacyjny i mogą odbiegać od stanu faktycznego. Opis obiektu został sporządzony na podstawie informacji przekazanych przez Oferującego. Oferta może być już nieaktualna. Prosimy o telefon.

Nota prawna

Opis oferty zawarty na stronie internetowej sporządzany jest na podstawie oględzin nieruchomości oraz informacji uzyskanych od właściciela, może podlegać aktualizacji i nie stanowi oferty określonej w art. 66 i następnych K.C.

Szczegóły oferty

Symbol oferty PRO-MW-11114
Powierzchnia 60,00 m²
Powierzchnia balkonów/tarasów 14,54 m²
Liczba pokoi 2
Piętro 4
Rodzaj budynku apartamentowiec
Technologia budowlana mieszana
Standard
Opłaty w czynszu administracja, CO, Części wspólne, fundusz remontowy, Winda, woda, woda ciepła, wywóz nieczystości
Opłaty wg liczników prąd
Liczba pięter w budynku 7
Garaż garaż
Stan lokalu do wprowadzenia
Typ kaucji jednomiesięczna
Mies. czynsz admin. 1 200 PLN
Okna nowe drewniane
Instalacje nowe
Balkon taras
Liczba tarasów 1
Rok budowy 2013
Widok na inne budynki
Woda tak - miejska
Dojazd asfalt
Otoczenie zabudowa mieszana
Ogrzewanie miejskie
Umeblowanie umeblowane
Winda tak
Liczba wind 2
Usytuowanie jednostronne
Drzwi antywłamaniowe tak
Klucze tak

Pomieszczenia

Powierzchnia pokoi 25,96;14,46 m2
Podłogi pokoi parkiet
Typ kuchni z zabudową kuchenną
Rodzaj kuchni aneks kuchenny - połączony z salonem
Powierzchnia kuchni 8,35 m2
Podłoga kuchni gres
Wyposażenie kuchni garnki, krzesła, lodówko/zamrażarka, naczynia, okap kuchenny, płyta indukcyjna, stół, szafki kuchenne, zabudowa kuchenna, zamrażarka, zmywarka
Typ łazienki razem z wc
Liczba łazienek 1
Powierzchnia łazienki 5,47 m2
Glazura łazienki nowego typu
Podłoga łazienki gres
Wyposażenie łazienki natrysk
Wyposażenie dodatkowe lustro, pralka
Liczba przedpokoi 1
Powierzchnia przedpokoi 6,40 m2
Podłoga przedpokoi gres

Lokalizacja

Podobne oferty

oferta specjalna
mieszkanie na wynajem - Łódź, Śródmieście, Tylna

mieszkanie na wynajem

Łódź, Śródmieście, Tylna
3 pokoje 85,21 m2 45,77 zł/m2
oferta specjalna
mieszkanie na wynajem - Łódź, Śródmieście, Tylna

mieszkanie na wynajem

Łódź, Śródmieście, Tylna
3 pokoje 85,21 m2 45,77 zł/m2

Napisz do nas

Proszę wypełnić to pole
Proszę wypełnić to pole
Proszę wypełnić to pole
Proszę wypełnić to pole
Trwa wysyłanie...

Ta strona wykorzystuje pliki cookies w celach statystycznych oraz w celu dostosowania naszych serwisów do indywidualnych potrzeb klientów. Zmiany ustawień dotyczących plików cookie można dokonać w dowolnej chwili modyfikując ustawienia przeglądarki. Korzystanie z tej strony bez zmian ustawień dotyczących cookies oznacza, że będą one zapisane w pamięci urządzenia.

rozumiem